Clear, builder-friendly garage plans for a practical two-car detached garage
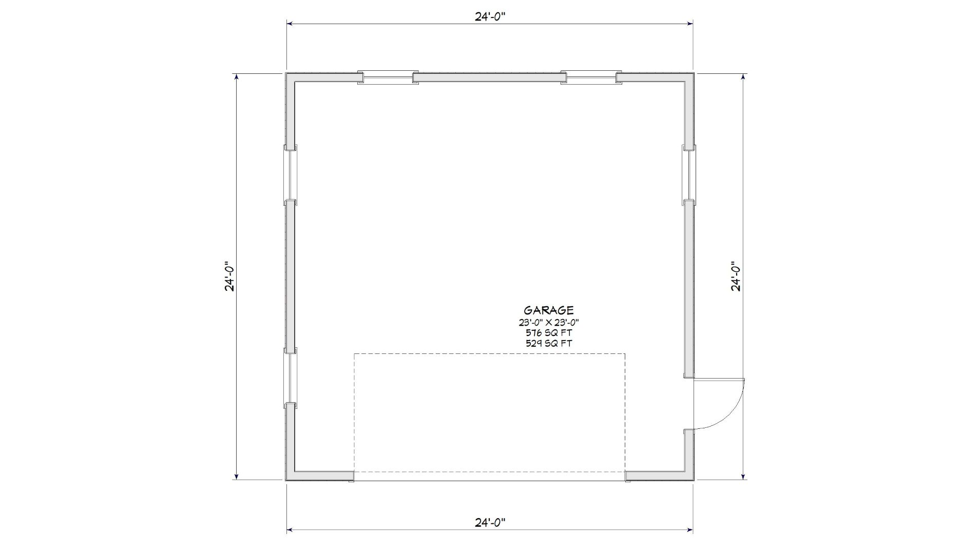
These pre-designed plan documents illustrate a durable and attractive two-car detached garage concept for general informational and plan-preview purposes. The design features a classic 6:12 gable roof, 9-foot wall height, and a layout optimized for parking two vehicles while maintaining comfortable interior clearance.
These plans are general, non-site-specific documents. Local code requirements, zoning rules, structural loading, and permitting standards vary by jurisdiction, and review or modification may be required before use.
At-a-glance specifications and typical construction features

Dimensioned floor plan included

Exterior elevation included

Builder and Pro plan packages

$599
Recommended for experienced builders.
- Basic detached garage construction drawing package
- Digital plan preview
- Best fit for buyers comfortable interpreting standard residential drawings
$849
Recommended for buyers who want the more complete package preview.
- More complete construction document package
- Digital plan preview
- Strongest fit for buyers wanting the most complete package preview
Start with Builder and upgrade later
Package details shown on this page are for preview and planning purposes. Upgrade logistics can be published later if direct sales are activated.
For now, use this site to review images, package differences, and planning information.
Instant delivery
This page is currently a package preview. No physical product is shipped from this preview site.
One structure per purchase
Plans are intended for a single permitted use. Any future licensing terms for additional use should be reviewed before reuse or construction of additional structures.
Local review may still be required
Local building codes, zoning rules, structural loading, snow loads, wind loads, soil conditions, and other site conditions vary by location. Review, revision, or additional services by a licensed local professional may be required before permitting or construction.
The purchaser, builder, contractor, and owner are solely responsible for verifying local compliance, approvals, and suitability before construction.
Preview the available plan packages
This page is intended to help visitors review the package options, images, and scope before direct sales are activated.